Patron Nieruchomości ma przyjemność zaprezentować wyjątkowy lokal w samym sercu Gdyni Orłowo. Szczególnym atutem tej nieruchomości jest dogodna i komfortowa lokalizacja.
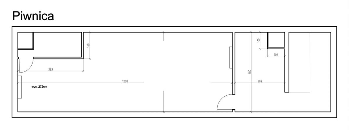
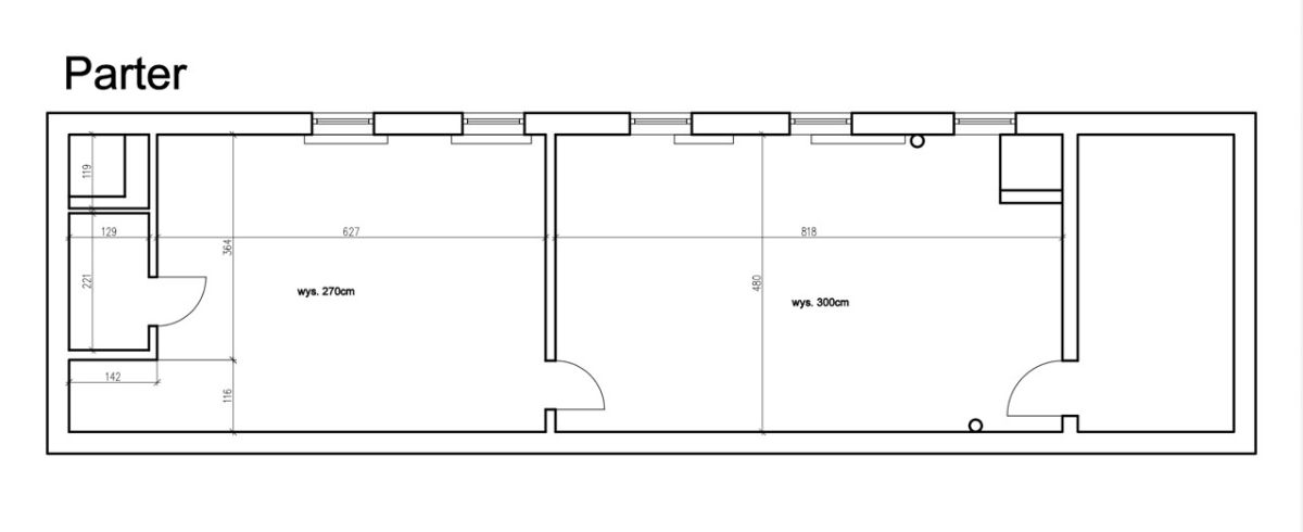
DO WYNAJĘCIA - LOKAL BIUROWO-MAGAZYNOWY Z MOŻLIWOŚCIĄ CICHEJ PRODUKCJI O POWIERZCHNI 257,80 m2
Przedmiotem oferty jest lokal biurowo-magazynowy o wysokim standardzie, usytuowany w dogodnej lokalizacji, zapewniającej łatwy dostęp do głównych tras komunikacyjnych oraz centrum miasta. Obiekt stanowi doskonałą propozycję dla firm poszukujących kompleksowej przestrzeni do prowadzenia działalności biurowej, usługowej lub cichej produkcji.
Charakterystyka nieruchomości:
• Trzy kondygnacje - funkcjonalny układ umożliwia efektywne rozdzielenie stref biurowych, magazynowych i socjalnych.
• Dostępne wszystkie media - prąd, woda, kanalizacja, gaz.
• Instalacja fotowoltaiczna - zapewnia niższe koszty eksploatacyjne i zwiększa efektywność energetyczną obiektu.
• System monitoringu 24h oraz rolety antywłamaniowe - gwarantują wysoki poziom bezpieczeństwa.
• Trzy miejsca postojowe w cenie najmu - zapewniają wygodny dostęp dla pracowników i kontrahentów.
Dodatkowe informacje:
• Budynek utrzymany w bardzo dobrym stanie technicznym, gotowy do użytkowania.
• Możliwość dostosowania powierzchni do indywidualnych potrzeb najemcy.
• Dogodny dojazd dla samochodów osobowych i dostawczych.
Przeznaczenie:
Lokal idealny dla podmiotów z branży logistycznej, handlowej lub lekkiej produkcji, poszukujących nowoczesnej, bezpiecznej i ekonomicznej powierzchni do prowadzenia działalności.
Cena najmu: 7 800 zł/msc
Dostępność: Styczeń 2026
Zapraszamy do kontaktu w celu uzyskania szczegółowych informacji oraz umówienia terminu prezentacji :
570 210 310 Joanna Bandyszewska - opiekun oferty.
!!W ofercie biura znajdą się również inne :lokale.mieszkania, domy w Gdyni Orłowie i okolicach!!
W razie pytań dotyczących powyższej nieruchomości zapraszam do kontaktu, a jeżeli ta oferta nie spełnia Państwa oczekiwań, biuro „Patron Nieruchomości” pomoże w znalezieniu tej właściwej.
„Prezentowana oferta ma charakter informacyjny, nie stanowi oferty handlowej w rozumieniu Art. 66 par. 1 Kodeksu Cywilnego.
Na mocy ustawy z dnia 4 lutego 1994 roku o prawie autorskim i prawach pokrewnych (Dz. U. Z 1994 roku Nr 24, poz. 83 z późn. zm.) kopiowanie treści oraz fotografii bez pisemnej zgody biura „Patron Nieruchomości”, stanowi naruszenie majątkowych praw autorskich oraz podstawę do odpowiedzialności karnej przewidzianej przepisami Art. 116 par. 1- 4 w.w. ustawy.”.
W razie pytań dotyczących powyższej nieruchomości zapraszam do kontaktu, a jeżeli ta oferta nie spełnia Państwa oczekiwań, biuro „Patron Nieruchomości” pomoże w znalezieniu tej właściwej.
„Prezentowana oferta ma charakter informacyjny, nie stanowi oferty handlowej w rozumieniu Art. 66 par. 1 Kodeksu Cywilnego.
Na mocy ustawy z dnia 4 lutego 1994 roku o prawie autorskim i prawach pokrewnych (Dz. U. Z 1994 roku Nr 24, poz. 83 z późn. zm.) kopiowanie treści oraz fotografii bez pisemnej zgody biura „Patron Nieruchomości”, stanowi naruszenie majątkowych praw autorskich oraz podstawę do odpowiedzialności karnej przewidzianej przepisami Art. 116 par. 1- 4 w.w. ustawy.”.